Our client had a requirement to replace worn out appliances in their kitchen facility.
We were the prime contractors for the supply, delivery and installation of professional Kitchen Equipment and VdS approved fire extinguishing system ANSUL R-102
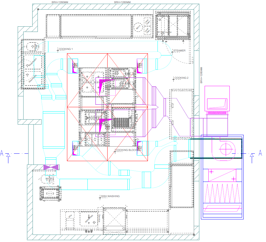
The scope of work included but not limited to the following
1 Working table,– open sub base and 2 drawers
1 Electrical flattop grill
3 Working tables, , open sub base including drawer
1 Double deep fryer, 6.5 liter each
1 Bain Marie, l
1 Noodle cooker
1 Induction Cooker, 4 cooking zones
1 mixing faucet
1 Convection oven
1 Exhaust hood for convection oven
1 Commercial dish washer with automatic basket detection, stainless steel, recuperation, reverse osmosis filter system, extracted air recuperation
1 Table stainless steel for industrial dishwasher, left
1 Discharge table for industrial dishwasher, right
1 Stainless steel table, U Shape, Length 2450x4360x6250mm, including 1 double sink with drainboard, 1 hand washbasin, 2 drawer blocks with 3 drawers each, 1 garbage can, 3 storage closets, 1 corner unit needed for convection oven, 2 wallcupboards/sliding doors, 1 cooling table including cooling plant and 6 cooling drawers.
1 kitchen faucet ¾
1 sensor faucet ½
2 Deep freezer, capacity 424 liter, Temperature range -15C/-22C,
2 Refrigerator, capacity 424 liter, Temperature range -2C/+12C
Pallet racks for storage area Aluminum with 4 adjustable boards
Commercial exhaust hood, concealed lighting system, flame proofing filter inserts-DIN18869-5
1 Kitchen air extraction unit including controller, mounting bracket and weather proofed cover
2 UV Cleaning module for kitchen exhaust systems
Air outlet conduit height of 15 meters including connection to ventilation, installation of deflector and mounting equipment/brakets.
Air system that includes weatherproof aeration unit and base frame
Sound absorber / intake and outtake side
VdS approved fire extinguishing system ANSUL R-102
Consisting of:
– 1 mechanical and pneumatic release unit including 3 stainless steel extinguishing agent
containers
– 1 pressure reducer, 2 potential-free contacts, LPG cylinders N2
– 3 canisters extinguishing agent ANSULEX LpH 11.4
– 4 channel nozzle 2W
– 8 hood nozzles 1N
– 5 wheel nozzles, different types
– 36 m VA pipe 3/8 including fittings and brackets, surface mounting
– 4 detectors including fusible links 74 ° C / 100 ° C / 138 ° C
– 21 m VA pipe 18×1 incl. VA cable diameter 1.5 – 1.9 mm incl. Brackets,
Surface mounting according to pulleys encapsulated
– 1 release lever and release lock
– 1 manual release surface-mounted
Want to find out more about this project? Or discuss your own requirements? Contact with us and speak to one of our experts.




